︎
Website Under Construction— Updates & New Work Coming Soon
STUDIO A—M 00
A New School for Architecture
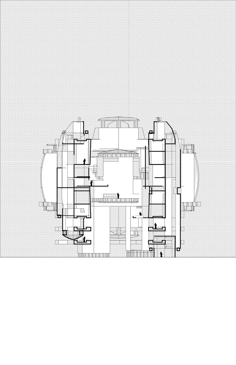
Castle Sphere (study 01)
︎
☥